Leave a Message

Thank you for your message. We will be in touch with you shortly.

Explore Our Properties

Property Description

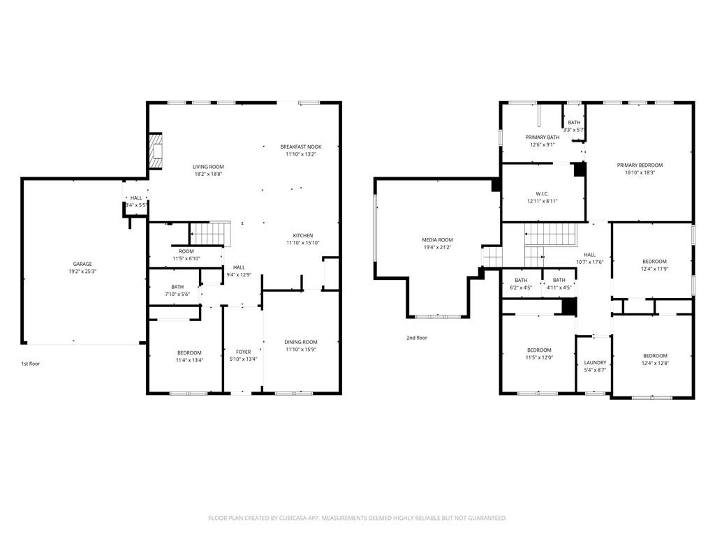
Welcome to your private sanctuary in the highly sought-after Sterling on the Lake! This beautifully maintained home is the perfect blend of elegance and functionality. Gleaming hardwoods span the entire main level, creating a seamless flow through the open living spaces. Upstairs, you'll find a massive full theatre room--the ultimate setup for movie nights and game days.

Step outside to your private backyard, featuring a covered patio designed for year-round relaxation. Beyond your property line, enjoy a vacation-style lifestyle with access to 4 pools, 6 pickleball courts, 10 tennis courts, miles of walking trails, and a playground. Located in a top-rated school district with lightning-fast access to the interstate and shopping, this home truly has it all!

Overview

Open House
4/19/2026 1:30PM - 3:30PM EDT
Property Status
For Sale
Lot Size
9,583.2 Sq.Ft.
MLS ID
7705039
Property Type
Residential
Year Built
2013

Features & Amenities

Total Area
3,169 Sq.Ft.
Neighborhood
Flowery Branch
Architecture Styles
Craftsman, Rustic, Traditional
Water Frontage
None
View Description
Neighborhood
Stories
2
Garage Spaces
2.0
Water Source
Public
Utilites
Cable Available, Electricity Available, Natural Gas Available, Phone Available, Sewer Available, Underground Utilities, Water Available
Pool
None
Roof
Composition, Shingle
Lot Features
Back Yard
Parking
Driveway, Garage, Garage Door Opener, Garage Faces Front
Heat Type
Central, Forced Air, Natural Gas
Air Conditioning
Ceiling Fan(s), Central Air, Electric
Laundry Room
Electric Dryer Hookup, Laundry Room, Upper Level
Fireplace
Factory Built, Gas Log, Gas Starter
Appliances
Dishwasher, Disposal, Dryer, Gas Cooktop, Microwave, Washer
Other Interior Features
Disappearing Attic Stairs, Double Vanity, Recessed Lighting, Tray Ceiling(s), Walk-In Closet(s)
Sewer
Public Sewer
Substructure
Slab
Disability Features
None
Security Features
Smoke Detector(s)
Green Feature
None
Other Exterior Features
Lighting, Private Yard, Rain Gutters
Elementary School
Spout Springs
Middle School
C.W. Davis
High School
Flowery Branch
Sales Price
$564,900
Real Estate Tax
$5,510/yr
HOA
$1,625/yr

Downloads

7232 Lake Sterling Blvd

Schedule a Tour

We would love to help you see this beautiful home! As a full-service brokerage, we can help you tour. Please submit an offer, and answer questions about the buying process.

Thank you

for your interest in 7232 Lake Sterling Boulevard, Flowery Branch, GA 30542

7232 Lake Sterling Blvd
Navigate
 A stately, large house constructed with light-colored brick or stone, featuring a prominent gray shingle roof with multiple gables.

Explore Flowery Branch

read more
7232 Lake Sterling Blvd
explore in 3d
  • Welcome to your private sanctuary in the highly sought-after Sterling on the Lake! This beautifully maintained home is the perfect blend of elegance and functionality.

    Gary Nix

Mortgage Calculator

Estimate your monthly mortgage payment, including the principal and interest, property taxes, and HOA. Adjust the values to generate a more accurate rate.
$0,000 Your Payment 20 15 65
$0,000 Your Payment

I'm Interested In

7232 Lake Sterling Blvd

or Contact

Follow Us On Instagram